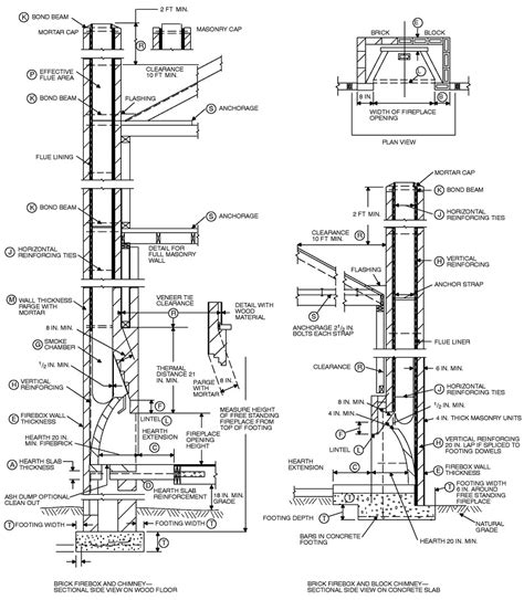
gas fireplace chimney code requirements
gas fireplace chimney code requirements. There are some references to gas fireplace chimney code requirements in this article. If you are looking for gas fireplace chimney code requirements you've came to the right place. We have posts about gas fireplace chimney code requirements. You can check it out below.
Showing posts matching the search for gas fireplace chimney code requirementsBlog Archive
-
▼
2023
(272)
-
▼
May
(57)
- Watch Mlb Opening Day
- Nashville Shooting New Year's Eve
- What Is Quashed Conviction
- State Holiday Travel: Destinations To Visit During...
- What Is Jpc Investigation
- Nashville Police Shooting Dollar General
- What Is An Indictment Mean
- The Music Of Orthodox Holy Saturday: From Lamentat...
- Mlb Start Date 2023
- What Is Indictment Legal
- What Is An Indictment Hearing
- What Is Indictment Presentation
- Mlb Opening Day Dates History
- Mlb Opening Day Nyc
- Alvin Bragg Early Life
- What Is Navarro Indicted For
- Opening Day Mlb Predictions
- Mlb Opening Day Dates History
- Mlb Opening Day 2023 Royals
- What Is Jpc Investigation
- What Is Investigation Methodology
- Mlb Opening Day Delay
- What Is Conviction Mean In The Bible
- What Is Investigation Teaching Method
- What Is Geotechnical Investigation
- Nashville Shooting Murfreesboro Rd
- Opening Day Mlb 2023 Games
- Orthodox Good Friday And The Mystery Of Salvation:...
- Opening Day For Mlb 2023
- Alvin Bragg Ny Times
- Theological Insights Into Holy Saturday And Its Im...
- Double Dogs Nashville Shooting
- Nashville Shooting On Interstate
- Mlb Opening Day Cubs 2023
- Lailat Al-Qadr And Forgiveness: The Spiritual Sign...
- Skeet Shooting In Nashville Tn
- Is Mlb Opening Day Delayed
- What Is Indictment Synonym
- What Is Indictment Vs Arrest
- Mlb Opening Day 2023 Angels
- What Is Empirical Investigation
- Lailat Al-Qadr And Forgiveness: The Spiritual Sign...
- What Is Conviction Value
- Shooting In Centennial Park Nashville
- Nashville Shooting Murfreesboro Rd
- When Is Mlb Opening Day
- What Is Conviction Rate
- Alvin Bragg Ny Times
- Royal Shooting Range Nashville Tn
- Alvin Bragg Harvard Law
- Why Did Mlb Cancel Opening Day
- Exploring State Holidays: A Guide To Observances A...
- Mlb Opening Day 2023 Pick Em
- Nashville Police Shooting On Interstate
- The Joy Of Easter Sunday: Celebrating With Family ...
- What Is Drug Indictment
- Shooting Range Nashville Indiana
-
▼
May
(57)
Total Pageviews
Search This Blog
Powered by Blogger.
